基于51单片机的6位密码锁设计

636 阅读3分钟

一、概要

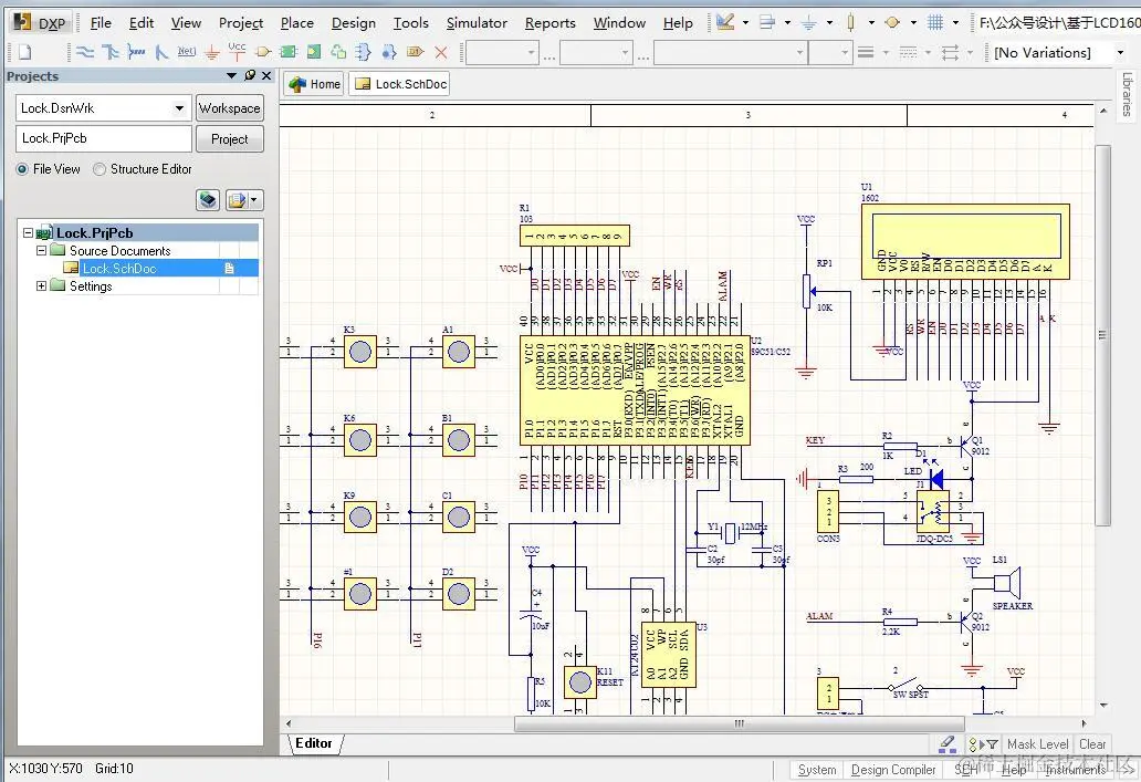
多功能电子密码锁系统由AT89C52单片机最小系统、4×4矩阵键盘、LCD1602显示、AT24C02存储模块以及报警系统等组成,具有设置、修改六位用户密码、超次报警、超次锁定、密码错误报警等功能。

二、设计要求

(1)本设计为了防止密码被窃取要求在输入密码时在LCD屏幕上显示*号;

(2)设计开锁密码位六位密码的电子密码锁;

(3)能够LCD显示在密码正确时显示OPEN,密码错误时显示 ERROR,输入密码时显示INPUT PASSWORD;

(4)实现输入密码错误超过限定的三次电子密码锁定;

(5)4×4的矩阵键盘其中包括0-9的数字键和确认、重设、清除以及关锁功能键;

(6)本产品具备报警功能,当输入密码错误时蜂鸣器响并且LED灯亮;

(7)密码可以由用户自己修改设定(只支持6位密码),修改密码之前必须再次输入密码,在输入新密码时候需要二次确认,以防止误操作;

Proteus仿真

原理图

PCB.jpg

仿真分析

(1)51单片机加载Lock程序的Hex文件,进行仿真运行,此时LCD显示初始密码输入界面。

11.png

(2)输入初始密码6个0后,点击“确认”键,LCD显示Open状态,密码锁打开,继电器动作,绿色LED灯点亮,开锁成功。

12.png

(3)重设密码过程为:在密码锁开锁成功的状态下,即LCD显示Open时,再次输入6位旧密码,点击“确认”键,此时LCD显示Set NewWord Enable,重设密码进程激活。

14.png

(4)此时,输入6位新密码,点击“重设”键,LCD显示“inputagain”,再次输入6位新密码,点击“重设”键,密码重设成功,此时LCD显示“ResetPassword OK”,新密码被写入AT24C02存储器。即使仿真结束,或单片机复位,AT24C02存储的密码都不会丢失。

15.png

(5)如果忘记密码,可输入管理员密码:131420,点击“确认”键后,LCD显示“Init Password”,密码锁密码被重置为:000000。

(6)密码输入过程中,均会产生提示音。一声提示音,表示按键每次的有效输入;两声提示音,表示开锁或密码重设重置成功;三声提示音,表示输入错误等。密码输入错误3次,键盘被锁死,提示音长鸣报警。

17.png

(7)开锁成功后,可以点击“关锁”键,模拟锁密码关锁,此时继电器失电,绿色LED灯熄灭,LCD显示密码输入界面。当密码输入过程中输入错误时,可以通过“清除”清除错误的某位密码数字,重新输入即可。

三、部分C程序

oidStop(void)

{

Sda=0;

Scl=1;

Nop();

Sda=1;

Nop();

}

voidAck(void)

{

Sda=0;

Nop();

Scl=1;

Nop();

Scl=0;

}

voidNoAck(void)

{

Sda=1;

Nop();

Scl=1;

Nop();

Scl=0;

}

voidSend(uchar Data)

{

ucharBitCounter=8;

uchartemp;

do

{

temp=Data;

Scl=0;

Nop();

if((temp&0x80)==0x80)

Sda=1;

else

Sda=0;

Scl=1;

temp=Data<<1;

Data=temp;

BitCounter--;

}

while(BitCounter);

Scl=0;

}

ucharRead(void)

{

uchar temp=0;

uchar temp1=0;

uchar BitCounter=8;

Sda=1;

do

{

Scl=0;

Nop();

Scl=1;

Nop();

if(Sda)

temp=temp|0x01;

else

temp=temp&0xfe;

if(BitCounter-1)

{

temp1=temp<<1;

temp=temp1;

}

BitCounter--;

}

while(BitCounter);

return(temp);

}