焦炭反应性及反应后强度试验方法

190 阅读10分钟

声明

本文是学习GB-T 4000-2017 焦炭反应性及反应后强度试验方法. 而整理的学习笔记,分享出来希望更多人受益,如果存在侵权请及时联系我们

1 范围

本标准规定了测定焦炭反应性及反应后强度试验方法的原理、试验仪器、设备和材料、试样的采取

和制备、试验步骤、结果的计算及精密度。

本标准适用于高炉炼铁用焦炭的反应性及反应后强度的测定,其他用途焦炭可参照执行。

2 规范性引用文件

下列文件对于本文件的应用是必不可少的。凡是注日期的引用文件,仅注日期的版本适用于本文

件。凡是不注日期的引用文件,其最新版本(包括所有的修改单)适用于本文件。

GB/T 1997 焦炭试样的采取和制备

YB/T 4494 焦炭反应性及反应后强度机械制样技术规范

3 原理

称取一定质量的焦炭试样,置于反应器中,在1100℃时与二氧化碳反应2 h
后,以焦炭质量损失的

百分数表示焦炭反应性(Coke Reactivity Index,简写为CRI)。

反应后焦炭,经I 型转鼓试验后,以大于10 mm
粒级的焦炭质量占反应后焦炭质量的百分数表示

焦炭反应后强度(Coke Strength After Reaction,简写为 CSR)。

4 试验仪器、设备和材料

4.1 电炉

电炉用电炉丝、碳化硅或其他能满足试验要求的加热元件加热均可。在炉膛内(1100±3)℃恒温
区长度不小于150 mm,
最好采用三段式加热炉(示意图见图1),保证二氧化碳与焦炭试样反应时,进入

试样层的气体温度、整个试样层温度稳定在(1100±3)℃。也可采用单点测温加热炉,参照附录
A。

GB/T 4000—2017

单位为毫米

说明:

1——上段电炉;

2——上段测温电偶;

3—— 中段电炉;

4—— 中段测温电偶;

5— 下段电炉;

6——下段测温电偶。

1 三段式加热炉示意图

4.2 温度控制装置

4.2.1 温度控制要求

温度控制装置能够在试验状态下实时显示试样层上、中、下温度,保证二氧化碳与焦炭试样反应时,

进入试样层的气体温度、整个试样层温度稳定在(1100±3)℃范围之内。

4.2.2 控温仪

4.2.2.1 控制精度:(1100±3
4.2.2.2 精度等级:不低于0.2级。

4.2.3 三点式热电偶( 示 意 图 见 图 2 )

S
型,不低于工业级Ⅱ级,热电偶测量端分别位于试样中心的上部、中部和下部。

GB/T 4000—2017

单位为毫米

说明:

1——上段测温电偶;

2—— 中段测温电偶;

3——下段测温电偶。

2 三点式热电偶示意图

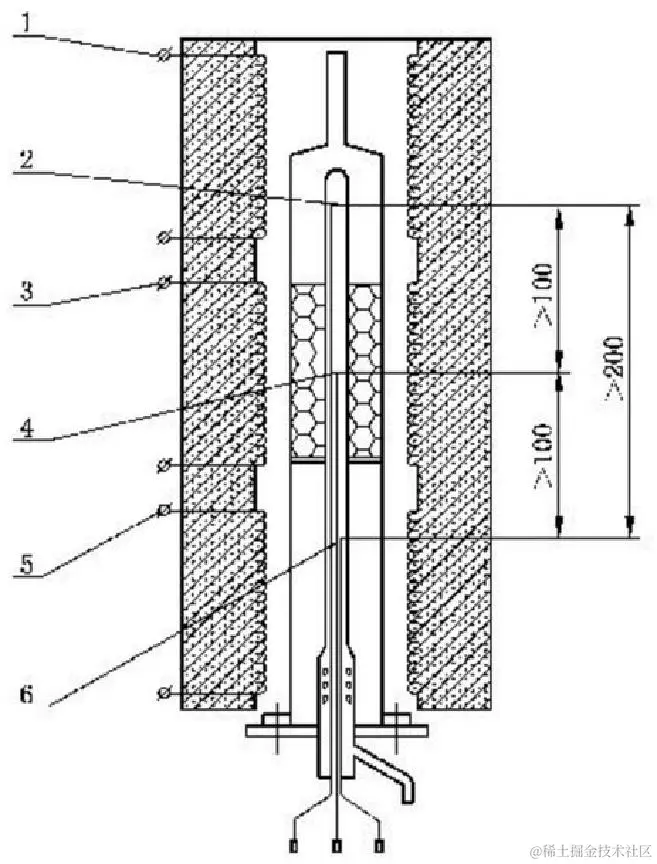
4.3 反应器(示意图见图3)

4.3.1 反应管材质:GH3044。

4.3.2 反应管壁厚:≥1.5 mm。

4.3.3 反应管内径:80 mm±1mm。

4.3.4 托料筛片:φ78 mm±1mm,

其上均匀钻φ3 mm 的圆孔,孔间距5 mm, 筛片厚度1.5 mm。

单位为毫米

说明:

1——反应器出气管;

2——反应器管壁;

3——热电偶护管;

4——焦炭试样;

5——托料筛片;

6——反应器进气管。

3 反应器示意图

GB/T 4000—2017

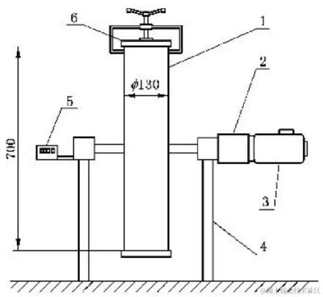
4.4 I 型转鼓(示意图见图4)

4.4.1 恒定转速:20 r/min。

4.4.2 鼓体:用内径130 mm, 厚 5 mm~6mm
的无缝钢管加工而成,鼓内净长度700 mm±1 mm,鼓 盖厚度5 mm~6 mm。

4.4.3 定期检查I 型转鼓转数及转鼓磨损情况,如果600 r 超过30 min±1

4.4.2 要求,应及时修补或更换。

min 或鼓体尺寸不符合

单位为毫米

说明:

1——转鼓;

2——联轴器;

3——减速电机;

4——支架;

5——计数器;

6——转鼓盖。

4 I 型转鼓结构示意图

4.5 二氧化碳供给系统

4.5.1 二氧化碳:纯度≥99.5%,干燥,其中 O₂ 的浓度应<0 . 01%。

4.5.2 二氧化碳质量流量控制器:量程5 L/min, 精度不低于±1.5%F.S。

4.5.3 设备进气口装配二氧化碳加热减压阀。

注:气体纯度不能满足要求时,可采用附录 B
中的仪器进行净化和干燥。本标准所用的气体体积和流量采用标准

状态(0℃和一个大气压)下的体积和流量。

4.6 氮气供给系统

4.6.1 纯氮:纯度≥99.99%,干燥。

4.6.2 氮气质量流量控制器:量程5 L/min, 精度不低于士1.5%F.S。

4.6.3 设备进气口装配氮气减压阀。

注: 气体纯度不能满足要求时,可采用附录 B
中的仪器进行净化和干燥。本标准所用的气体体积和流量采用标准

状态(0℃和一个大气压)下的体积和流量。

GB/T 4000—2017

4.7 圆孔筛

φ10 mm,筛框有效直径200 mm。
φ23 mm,筛框有效直径300 mm。
φ23 mm 和φ25 mm, 筛面400 mm×500

mm,参 见GB/T

2006 圆孔筛规定制作。

4.8 干燥箱

工作室容积不小于0.07 m³ 的鼓风干燥箱。

4.9 天 平

最大称量不超过1000 g,感量为0. 1 g。

4.10 铑-铂热电偶

S
型,不低于工业级Ⅱ级,装在耐热保护管中,用来测定和控制试验条件所要求的样品温度。

4.11 标准样品

焦炭反应性及反应后强度标准样品,用来定期检测设备的稳定性。

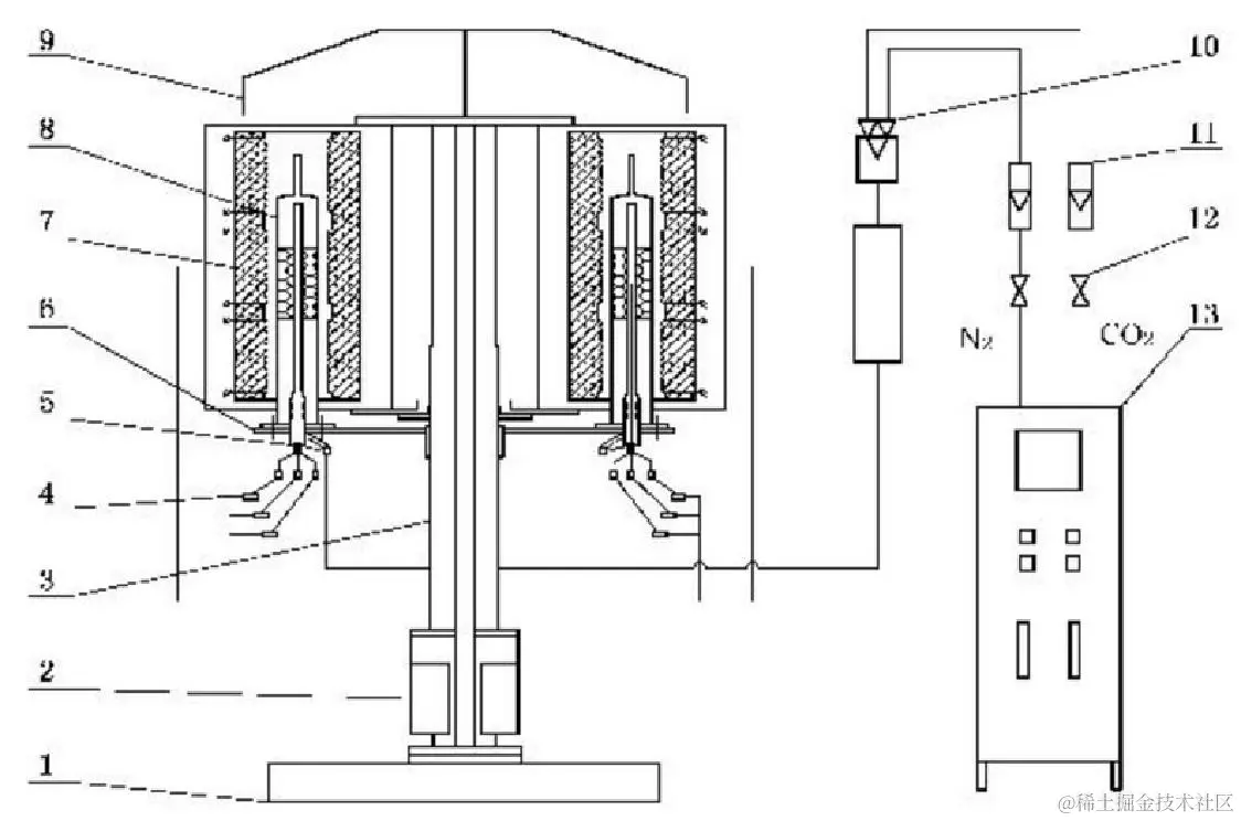
4.12 三段式加热炉法-焦炭反应性检测系统

示意图见图5。

说明:

1 双炉基座;

8 - 反应器;

2——升降机构;

9 — 排气罩;

3 — 升降立柱;

10— 配气装置;

4——三段控温电偶;

11— 流量计;

5——气体入口;

12— 电磁阀;

6——升降托板;

13—— 电控柜。

7——三段炉膛;

5 三段式加热炉法-焦炭反应性检测系统示意图

GB/T 4000—2017

5 试样的采取和制备

5.1 按 GB/T1997 规定的取样方法,按比例取不小于25 mm 焦炭60
kg,完全弃去气孔大、成蜂窝状 的泡焦和带有黑头、不完全是灰色的炉头焦。

5.2 将焦炭制成23 mm~25mm 的近似球形颗粒。机械制样按照 YB/T4494
的要求执行。

5.3 试验焦炉的焦炭可用大于40 mm 粒级的焦炭直接制样。

5.4 将制好的试样用缩分器缩分出900 g,在170℃~180℃温度下干燥2
h,放入干燥器中冷却至室 温,再用φ23 mm 和φ25 mm
的筛子进行筛分,去除粘着在焦块上的焦粉,用四分法将试样分成四份,
每份不少于220 g,装入密封的容器中备用。焦炭水分可参照附录 C
测定,若焦炭水分小于1%可不 干燥。

6 试验步骤

6.1 试验次数

最少进行两次试验。记录每一次试验的焦粒数量,保证重复性试验或再现性试验使用的焦炭粒数

相差不超过1粒。如果不能保证焦炭粒数满足要求时,在报告中注明并说明原因。

6.2 试样准备

称取试样(200±2)g,精确到0.1 g,记录其质量为m,
最终的质量校正可通过替换一块较轻或较重

的焦炭来完成。

6.3 试样装入反应器

将焦炭试样装入反应器中铺平,确保反应器内的焦炭层处于电炉恒温区中部,将热电偶插入套管内

并处于料层中心位置,固定好反应器。将反应器进气口与供气系统连接,检查气路,保证系统的气密性。

6.4 升温

电炉升温,升温速度为8℃/min~16℃/min。 当料层温度达到400℃时,以0.8 L/min
的流量通
入氮气,防止焦炭烧损。当料层温度达到1050℃时,预热二氧化碳气瓶出口处,以保证二氧化碳稳定
流出。当料层温度达到1100℃时,稳定10 min,切断氮气,改通二氧化碳,流量为5
L/min, 记录开始 反应时间。通二氧化碳后料层温度应在5 min~10 min
内恢复到1100℃±3℃。反应2 h,停止加热,

切断二氧化碳,改通氮气,流量为2 L/min。

警示——试验过程中有少量的 CO
排出,为保证安全,应将尾气燃烧或直接排出室外。试验过程

中,要保持室内空气流通。

6.5 试样冷却

反应器出炉,在氮气保护下温度降到100 ℃以下,停止通入氮气。

6.6 称量

打开反应器,倒出焦炭,称量,精确到0.1 g,记录为 m₁
并记录反应后试样粒数。

6.7 转鼓试验

反应后的焦炭全部装入 I 型转鼓内,以20 r/min 的转速共转30 min,总转数600
r,然后取出用

GB/T 4000—2017

φ10 mm圆孔筛筛分,称量筛上物质量,精确到0.1 g, 记录为m₂
并记录转鼓后试样粒数。

6.8 记录

试验的原始数据按附录 D 的格式记录。

7 结果计算

7.1 焦炭反应性

焦炭反应性(CRI) 按(1)式计算,数值以%表示:

(1)

式中:

m ——反应前焦炭质量,单位为克(g);

mi—- 反应后残余焦炭质量,单位为克(g)。

7.2 反应后强度

反应后强度(CSR) 按(2)式计算,数值以%表示:

………………………… (2)

式中:

m2——转鼓后大于10 mm 粒级焦炭质量,单位为克(g)。

焦炭反应性及反应后强度的试验结果取平行试验的算数平均值,保留到小数点后一位。

8 精密度

焦炭反应性(CRI) 和焦炭反应后强度(CSR)
的重复性和再现性,不得超过表1的规定值:

重复性是用本方法在正常和正确操作情况下,由同一操作人员,在同一实验室内,使用同一仪器,并
在短期内,对相同试验样(见6.2)所作两个单次测试结果,在95%概率水平两个独立测试结果的最大

差值。

再现性是用本方法在正常和正确操作情况下,由两名操作人员,在不同实验室内,对相同试验样(见

6.2)各作单次测试结果,在95%概率水平两个独立测试结果的最大差值。

表 1

精密度要求

重复性/%

再现性/%

焦炭反应性(CRI)

≤2.4

≤4.0

焦炭反应后强度(CSR)

≤3.2

≤5.0

GB/T 4000—2017

A

(资料性附录)

单点测温加热炉

A.1 恒温区温度定期校准

电炉恒温区长度应大于150 mm,
试验时应保证焦炭层在恒温区内,电偶测量端在焦炭层的中心

(可参照附录 E) 定期鉴定恒温区或用焦炭标样对反应性设备进行标定。

A.2 电炉(见图 A.1)

电炉用金属电炉丝、碳化硅或其他满足试验要求的加热元件均可。

说明:

1—— 出气管;

2——炉体;

3——试样;

4——筛板;

5——高铝球(直径约10 mm);

6——反应器;

延伸阅读

更多内容 可以 GB-T 4000-2017 焦炭反应性及反应后强度试验方法. 进一步学习

联系我们

天津市道路交通安全若干规定.pdf