船用法兰铸钢止回阀

101 阅读6分钟

声明

本文是学习GB-T 586-2015 船用法兰铸钢止回阀. 而整理的学习笔记,分享出来希望更多人受益,如果存在侵权请及时联系我们

1 范围

本标准规定了法兰连接尺寸和密封面按 CB/T 4196、GB/T 2501
的船用法兰铸钢止回阀(以下简

称止回阀)的分类和标记、要求、试验方法、检验规则、包装和贮存。

本标准适用于介质为淡水、滑油、燃油和温度不超过300℃的蒸气管路系统用止回阀的设计、制造

和验收。

2 规范性引用文件

下列文件对于本文件的应用是必不可少的。凡是注日期的引用文件,仅注日期的版本适用于本文

件。凡是不注日期的引用文件,其最新版本(包括所有的修改单)适用于本文件。

GB/T 600—2008 船舶管路阀件通用技术条件

GB/T

699—1999 优质碳素结构钢

GB/T

983—1995 不锈钢焊条

GB/T

1184—1996 形状和位置公差 未注公差值

GB/T

1220—2007 不锈钢棒

GB/T

1804—2000 一般公差 未注公差的线性和角度尺寸的公差

GB/T

1958 产品几何量技术规范(GPS) 形状和位置公差 检测规定

GB/T

2501 船用法兰连接尺寸和密封面

GB/T

3032 船舶管路附件的标志

GB/T

11698 船用法兰金属阀门的结构长度

GB/T

12229—2005 通用阀门 碳素钢铸件技术条件

CB/T

4196 船用法兰 连接尺寸和密封面

3 分类和标记

3.1 型式

止回阀的型式规定如下:

A 型——法兰连接尺寸按CB/T 4196 的直通型止回阀;

B 型——法兰连接尺寸按CB/T4196 的直角型止回阀;

AS 型——法兰连接尺寸按 GB/T 2501 的直通型止回阀;

BS 型——法兰连接尺寸按GB/T 2501 的直角型止回阀。

3.2 基本参数

止回阀的基本参数按表1。

GB/T 586—2015

1 止回阀的基本参数

型 式

公称压力

PN

设计压力p

MPa

公称尺寸

DN

A、B

10

1.0

65~125

25

2.5

20~100

AS、BS

16

1.6

65~125

25

2.5

20~100

3.3 结构和基本尺寸

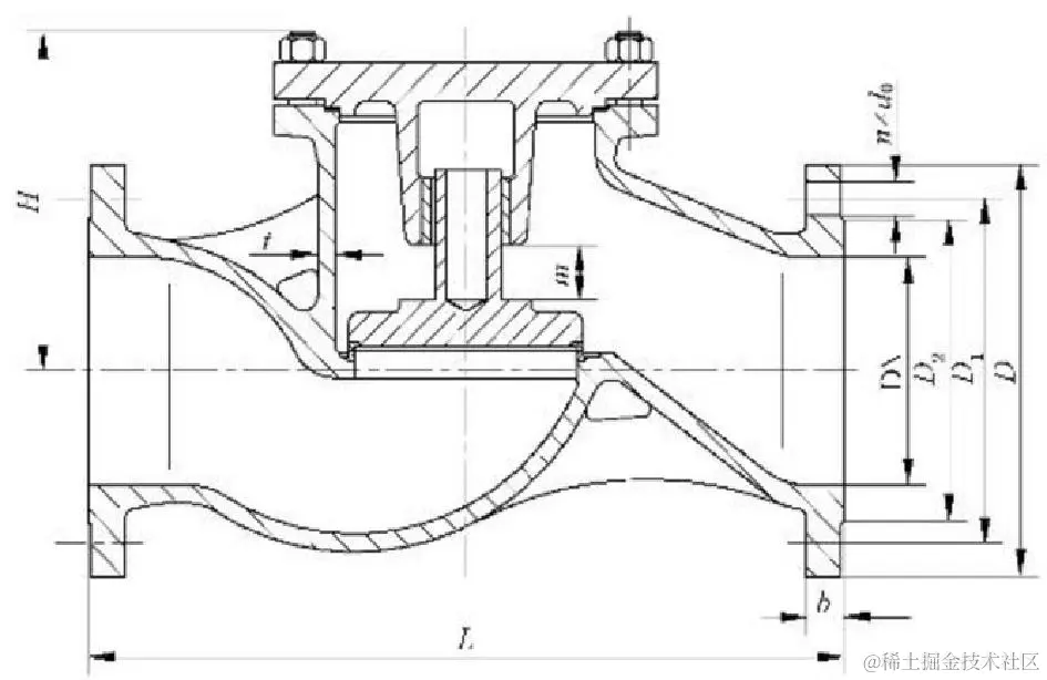
3.3.1 A 型 、B 型止回阀的结构和基本尺寸按图1、图2和表2。

图 1 A 型 、AS 型

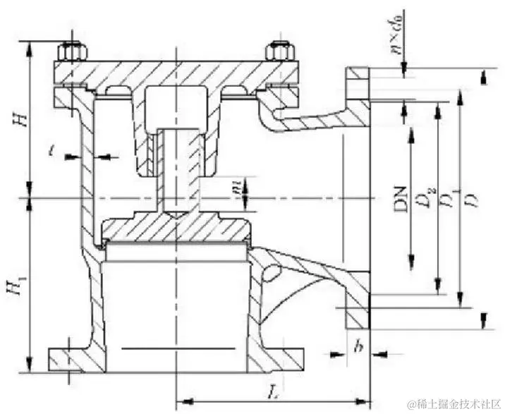
2 B 、BS

2

2 A 、B 型止回阀的基本尺寸

GB/T 586—2015

单位为毫米

公称

压力

PN

公称 尺寸

DN

结 构 尺 寸

壁 厚

法 兰

螺 栓

升 程

理论质量

kg

L

H≈

D

do

b

n

Th.

A型

B型

A型

B型

A型

B型

B型

10

65

290

115

124

91

115

6

155

123

104

15

14

6

M14

19

12.5

10.6

80

310

125

151

110

125

7

170

138

118

8

23

15.6

14.4

100

350

150

165

116

135

8

190

158

138

28

24.5

19.9

125

400

175

184

124

155

215

183

164

10

35

31.9

27.5

25

20

150

75

84

70

75

6

95

68

48

13

11

4

M12

7

3.3

3.2

25

160

80

80

105

73

56

12

7

3.9

3.8

32

180

85

90

85

115

83

64

15

13

6

M14

9

5.8

5.1

40

200

90

99

75

90

7

125

93

74

12

7.1

6.3

50

230

95

110

81

95

135

103

84

15

8.8

8.5

65

290

115

128

94

115

170

132

110

17

15

8

M16

19

13.5

11.5

80

310

125

156

115

125

185

147

126

16

23

18.0

16.9

100

350

150

168

119

135

8

205

167

146

10

28

26.3

22.7

3.3.2 AS 型 、BS 型止回阀的结构和基本尺寸按图1、图2和表3。

3 AS 、BS 型止回阀的基本尺寸

单位为毫米

公称

压力

PN

公称

尺寸

DN

结 构 尺 寸

壁 厚

法 兰

螺 栓

程 w

理论质量

kg

L

H≈

D

do

b

n

Th.

AS型

BS型

AS型

BS型

AS型

BS型

BS型

16

65

290

145

130

96

145

7

185

145

118

18

20

8“

M16

19

15.9

14.6

80

310

155

155

114

155

200

160

132

8

23

20.5

18.7

100

350

175

168

119

175

8

220

180

156

22

28

30.4

28.1

125

400

200

190

128

200

250

210

184

35

39.6

35.2

25

20

150

95

84

70

95

6

105

75

56

14

16

4

M12

7

4.2

4.2

25

160

100

100

115

85

65

4.9

5.0

32

180

105

90

105

140

100

76

18

18

M16

9

8.4

7.9

40

200

115

99

75

115

7

150

110

84

12

8.9

8.8

50

230

125

110

81

125

165

125

99

20

15

10.4

10.1

65

290

145

128

94

145

185

145

118

22

8

19

16.6

15.3

80

310

155

156

115

155

200

160

132

24

23

22.1

20.0

100

350

175

168

119

175

8

235

190

156

22

M20

28

31.5

29.2

当制造厂和用户协商同意后,钢法兰也可以采用4个螺栓孔。

GB/T 586—2015

3.4 标记

3.4.1 型号表示方法

公称尺寸的数值:不足三位的前边加“0”

公称压力的数值

型式

3.4.2 标记示例

1 :

公称压力 PN25、 公称尺寸DN50、 法兰连接尺寸和密封面按CB/T4196
的直通型船用法兰铸钢止回阀标记为:

止回阀 GB/T 586—2015 A25050

示例2:

公称压力 PN16、 公称尺寸 DN100、 法兰连接尺寸和密封面按 GB/T2501
的直角型船用法兰铸钢止回阀标记为:

止回阀 GB/T 586—2015 BS16100

延伸阅读

更多内容 可以 GB-T 586-2015 船用法兰铸钢止回阀. 进一步学习

联系我们

GW0103-2014 国家电子政务外网 安全等级保护基本要求.pdf