东数西算中的绿色智算数据中心 | 技术干货

329 阅读1小时+

未标题-1.png

东数西算 | 绿色数据中心 | IDC 

智算中心 | 新型数据中心 | 液冷数据中心

随着生命科学、基因测序、医药研发、高性能计算、深度学习、遥感测绘、地质勘探、冷冻电镜、数据分析、数据挖掘、真空羽流、并行计算等技术的快速发展,以及国家东数西算政策的支持,建设绿色数据中心、智算中心成为人们关注的重中之重。

为加快推广先进适用节能技术装备产品,推动工业和信息化领域节能和能效提升,助力碳达峰、碳中和目标实现,工业和信息化部发布《国家工业节能技术推荐目录》和《国家通信业节能技术产品推荐目录》,其中包括流程工业节能提效技术、重点用能设备系统节能提效技术、储能及可再生能源利用技术、智慧能源管控系统技术、余热余压利用技术等5大类69项工业节能提效技术,以及绿色数据中心、5G网络和其他通信业领域等3大类74项技术产品。

由于篇幅有限需要更加详细资料,请在公众末尾留下您的邮箱,小编会将PDF文件发您邮箱,共同进步学习。

蓝海大脑液冷服务器.png

高效冷源技术

一、蒸发冷却新风系统主要依托蒸发冷却技术

利用水蒸发吸热的效应来冷却空气,通过水与空气间的热湿交换,空气的显热转变为水的潜热,从而实现对空气的冷却降温。适用于新建和改造的数据中心。耗电比低于0.17瓦/(立方米/小时)。内蒙古某数据中心使用澳蓝(福建)实业有限公司的技术产品,送风量为120000立方米/小时,排风量为100000立方米/小时,额定功率20.3千瓦,年节电37.8万千瓦时,节能率在80%左右。预计未来5年市场占有率可达20%。

蒸发冷却新风系统.png

蒸发冷却新风系统主要依托蒸发冷却技术

二、间接蒸发冷却空调机组

主要依托蒸发冷却技术,利用水蒸发吸热的效应来冷却空气,通过水与空气间的热湿交换,实现对空气的冷却降温,利用被降温的湿空气(二次空气)通过高分子露点间接蒸发冷却芯体将冷量传递给待处理的空气(一次空气)。适用于新建和改造的数据中心。耗电比低于0.85瓦/(立方米/小时)。内蒙古某数据中心使用澳蓝(福建)实业有限公司产品,送风量为50000立方米/小时,额定功率42.5千瓦。年节电23.4万千瓦时,节能率可以达到50%左右。预计未来5年市场占有率可达到20%。

间接蒸发冷却空调机组技术.png

间接蒸发冷却空调机组

三、智能免维护湿膜新风机组的湿膜加湿系统

将室外新风经湿膜过滤处理后,使新风得到一定净化的同时,新风温度下降4~10℃。通过智能控制系统将湿膜新风机组与数据中心机房内的空调进行联动。适用于新建和改造的数据中心。以北京为例,预计可把数据中心电能利用效率(PUE)由1.75降至1.4左右。张家界某数据中心使用北京华清凯尔空气净化技术有限公司产品,年节电13.6万千瓦时。预计未来5年市场占有率可达到20%。

智能免维护湿膜新风机组.png

智能免维护湿膜新风机组的湿膜加湿系统

四、复合冷源热管冷却及空调技术

通过自然冷源和机械制冷相结合的方式,配套热管型室内末端,解决无冷冻水或者不具备建立冷冻站的数据机楼的空调冷却问题。适用于中小型新建和改造的数据中心。在自然冷却模式下,性能系数(COP)≥20,在混合冷却模式下,COP≥6。山西某小型改造数据机房使用北京纳源丰科技发展有限公司的产品,共采用12套总冷量520千瓦的复合冷源热管冷却及空调产品,年节电45.38万千瓦时。预计未来5年市场规模将超过1万套/年。

复合冷源热管冷却及空调技术.png

复合冷源热管冷却及空调技术

五、变频离心式冷水机组

依据数据中心工况优化设计,采用数字变频技术实现较高COP及综合部分负荷性能系数(IPLV)。智能控制系统依据负荷变化自动变频控制压缩机转速,在各压比下均可运行在最高能效区域并避开喘振点。适用于新建和改造的绿色数据中心,COP≥7.0,IPLV≥11.0,与普通定频离心式冷水机组相比,可节电30%。缺水地区不宜使用。杭州某云计算数据中心使用顿汉布什(中国)工业有限公司的变频离心式冷水机组设备(4用1备),年节电420万千瓦时。预计未来5年市场占有率可达到70%。

变频离心式冷水机组.png

变频离心式冷水机组

六、自然冷却风冷螺杆冷水机组

具有压缩机制冷、完全自然冷却、压缩机制冷+自然冷却三种运行方式。机组会根据环境温度高低自行决定运行制冷方式。开机之后机组自动转换,自动运行。适用于新建和改造的数据中心。全年能效比(AEER)>6.0;与传统的水冷式冷水机组相比,节水100%;与常规风冷螺杆冷水机组相比,节电36%以上。北京某数据中心使用顿汉布什(中国)工业有限公司产品(3用1备),年节电205万千瓦时;年节水1.6万立方米。预计未来5年市场占有率可达到20%。

自然冷却风冷螺杆.png

自然冷却风冷螺杆冷水机组

七、变频氟泵双冷源精密机房空调

指将制冷剂循环泵(简称氟泵)和压缩机串联到同一个管路系统中,在低温季节(≤5℃),运行在氟泵节能模式下,只开氟泵制冷,充分利用自然冷源,降低空调耗电量;在过渡季节(5~15℃),同时开启压缩机、氟泵,运行在混合模式下。适用于新建和改造的数据中心,在冬季室外冷源充足的地方整机能效比更高。山西晋城某数据中心使用广东海悟科技有限公司产品,3套100千瓦氟泵机房空调相比于改造前3套风冷机房空调,年节电13.2万千瓦时。预计未来5年市场占有率可达到20%。

变频氟泵双冷源精密机房空调.png

变频氟泵双冷源精密机房空调

八、蒸发冷凝式冷水机组

以水和空气作为冷却介质,利用空气的流动及水分的蒸发带走制冷剂的冷凝热。蒸发的水蒸气随空气排走,而未蒸发的水分会滴落到水箱,并通过水泵形成冷却水循环。适用于新建和改造的数据中心。COP≥4.0;AEER≥9.0(北京地区)。北京某所项目使用广东申菱环境系统股份有限公司产品,机房共采用3台740千瓦、2台340千瓦的蒸发冷凝式冷水机组,带自然冷却功能,与风冷冷水机组相比年节电20%,与普通水冷式冷水机组相比年节水50%。预计未来5年市场容量将达到30亿元。

蒸发冷凝式冷水机组.png

蒸发冷凝式冷水机组

九、板管蒸发冷却式自然冷源数据中心专用冷水机组

采用板管蒸发冷却技术,通过多级制冷获得最低制冷系统温差,利用分段冷却获得高传热介质温度,拉大传热介质温度与环境空气温度的温差;利用室外自然冷源供冷,降低空调系统能耗。机组具备常规机械制冷模式和自然冷源制冷模式双高效运行优势。一体化设计,无须冷却塔、空调机房,设备摆放于屋面,便于安装。适用于新建和改造的数据中心。广州某数据中心使用广州市华德工业有限公司产品,相较于水冷却系统年节电99.96万千瓦时,节能率约为10%,节水21.02万吨,耗水节约量约为50%。预计未来3年市场占有率可达到10%。

板管蒸发冷却式自然冷源数据中心专用冷水机组.png

板管蒸发冷却式自然冷源数据中心专用冷水机组

十、自加湿机房精密空调

利用布水器将净水从翅片顶部均匀流下,在翅片的亲水膜层作用下形成一层水膜,不饱和空气从翅片间穿过时,迅速吸收水膜表面蒸发的水蒸气,达到加湿效果。适用于新建数据中心。浙江某小型数据中心采用河南晶锐冷却技术股份有限公司加湿量为5千克/小时的自加湿精密空调3台,初期投资未增加,投资回收期为0。自2019年2月至2021年4月三台机组累计加湿时间2320小时,与常规加湿器能耗相比,节电8607.2千瓦时。预计未来5年市场占有率可达到1%。

image.png

自加湿机房精密空调

十一、间接蒸发冷却技术

在空-空间接式换热技术的基础上,集成高效蒸发冷却系统的自然冷却技术。适用于大中型新建和改造的数据中心,尤其适用于低温、干燥、水资源丰富的地区。在气象适宜的地区,可降低数据中心制冷系统耗电和耗水。山东某数据中心使用华为技术有限公司产品,负载率为50%时,年均PUE由1.41降至1.25,年节电170万千瓦时。预计未来3年市场占有率可达到35%。

间接蒸发冷却机组工作原理.png

间接蒸发冷却机组工作原理

十二、磁悬浮变频离心冷水机组

由磁悬浮离心压缩机、壳管式冷凝器、降膜式蒸发器、电子膨胀阀、经济器及其电控系统组成,利用制冷循环原理制取冷水。同时,充分利用自然冷源,实现低能耗、高效率。适用于新建和改造的数据中心。机组的IPLV为11.1;机组最大COP为26;机组启动电流为2安。广东深圳某数据中心使用南京佳力图机房环境技术股份有限公司产品,2台880千瓦机组,年节电126.9万千瓦时。预计未来5年市场总额将达到1000台。

image.png

磁悬浮变频离心冷水机组工作原理图

十三、蒸发冷集成冷站

由动力模块和蒸发冷凝模块组成,是一种新型节能冷水系统。集成了变频离心压缩机技术、氟泵技术、蒸发冷凝技术等节能技术,可明显降低压缩机冷凝温度,提高系统能效,充分利用自然冷源,将数据中心冷却系统全年制冷负载系数(CLF)降到0.15以下。适用于新建和改造的数据中心。深圳某互联网数据中心使用深圳市英维克科技股份有限公司产品,采用300千瓦蒸发冷集成冷站1套。CLF均值为0.15。预计未来5年,新建IDC数据中心应用规模500套;老旧IDC数据中心改造应用规模200套。

蒸发冷集成冷站工作原理图.png

蒸发冷集成冷站工作原理图

十四、复合冷源热管冷却技术及空调

由室外蒸发冷凝散热模块、室内热管散热模块和冷量输配模块组成。适用于新建和改造的数据中心。在热管冷却技术基础上,冷源端集成强制风冷、蒸发冷却、氟泵、压缩机等制冷方式,以进一步增强适用性和节能性。河北某互联网数据中心使用深圳市英维克科技股份有限公司产品,共采用300千瓦复合冷源热管冷却技术及空调7套。CLF均值 0.07以下。预计未来5年市场规模2000~4000套。

复合冷源热管冷却及空调技术.png

复合冷源热管冷却技术及空调

十五、间接蒸发空气冷却系统

采用露点型风侧间接蒸发冷却技术,机组先通过露点型间接蒸发冷却方式对环境空气进行降温、加湿、显热交换等过程,可将机房回风温度降至低于环境湿球温度。对于夏季送风温度接近环境湿球温度的数据中心,可对其进行全年全自然冷却,降低年均PUE。适用于新建和改造的数据中心。内蒙古某云计算产业园使用深圳易信科技股份有限公司的产品年节电3802.9万千瓦时。预计未来5年市场占有率可达到20%。

间接蒸发空气冷却系统工作原理图.png

间接蒸发空气冷却系统工作原理图

十六、风冷空调室外机湿膜冷却节能技术

在风冷空调室外机中设置湿膜装置,干燥热空气经过湿膜时,通过湿膜中水的蒸发吸热,达到入口空气冷却净化的效果。适用于新建和改造的数据中心。室外机进风温度每降低1℃,综合计算可节能约3%。重庆某数据中心使用四川斯普信信息技术有限公司产品,共采用风冷空调室外机湿膜冷却节能装置21台(室外机总功率90千瓦),年节电46.36万千瓦时。预计未来5年实现推广量50000台。

风冷空调室外机湿膜冷却节能技术工作原理图.png

风冷空调室外机湿膜冷却节能技术工作原理图

十七、氟泵双循环自然冷却技术

采用全变频技术、氟泵自然冷技术和蒸发冷却技术的结合,最大限度利用自然冷源,实现全年最优能效比。适用于新建和改造的数据中心。可以无水应用,对使用区域没有限制。使用该产品机房PUE可实现1.25,而采用传统制冷技术的机房优化后PUE可实现1.4。天津某数据中心共采用维缔技术100千瓦氟泵双循环自然冷却机组60台,年节电800万千瓦时。预计未来3年市场占有率可达到20%以上。

氟泵双循环自然冷却技术工作原理图.png

氟泵双循环自然冷却技术工作原理图

十八、间接蒸发冷技术

根据室外环境温湿度,机组热负荷百分比在干模式、湿模式、混合模式三种不同运行模式间自动切换,充分利用室外自然冷源,减少机械制冷时长,节约能耗。适用于新建和改造的数据中心。使用该技术机房PUE可实现1.25,而采用传统制冷技术的机房优化后PUE可实现1.4。河北怀来某新建数据中心使用维缔技术36台间接蒸发冷空调,年节电900万千瓦时。预计未来3年市场占有率可达到20%以上。

间接蒸发冷技术工作原理图.png

间接蒸发冷技术工作原理图

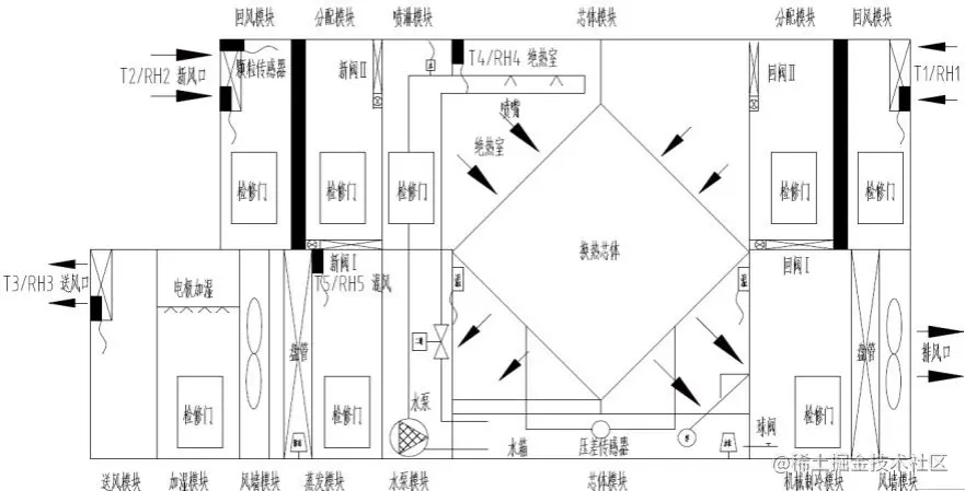
十九、蒸发冷却技术

利用水蒸发吸热的效应来冷却空气或水,按照技术形式可分为直接蒸发冷却和间接蒸发冷却两种形式,按照产出介质分类又可分为风侧蒸发冷却与水侧蒸发冷却两种形式。间接蒸发冷却冷水机组属于水侧间接蒸发冷却技术,适用于新建和改造的数据中心,能效比≥15,PUE值可低至1.1。新疆某数据中心使用新疆华奕新能源科技有限公司产品,采用33台制冷量为230千瓦的间接蒸发冷却冷水机组为全年主导冷源,与压缩式冷水机组相比年节电2130万千瓦时。预计未来5年市场占有率可达到35%。

机组热湿处理过程焓湿图.png

机组热湿处理过程焓湿图

二十、间接蒸发冷却一体化集成冷站

以蒸发冷却技术为核心,集成了板换,水泵,压缩机冷水主机等,可安全、高效的直接向末端提供源。间接蒸发冷却一体化冷站属于水侧间接蒸发冷却技术,适用于新建和改造的数据中心。海南某数据中心(机房)使用新疆华奕新能源科技有限公司产品,一期采用1台制冷量为350千瓦的间接蒸发冷却一体化集成冷站为冷源,与原风冷冷媒空调相比,节电率可达63%,年节电114万千瓦时。预计未来5年市场占有率可达到30%。

间接蒸发冷却一体化集成冷站结构示意图.png

间接蒸发冷却一体化集成冷站结构示意图

二十一、间接蒸发冷系统

集成八种节能系统运行模式且各模式间可智能自由切换,自适应不同的运行模式,充分利用室外空气的自然冷源。通过水压和绝热室内的湿度来控制水量,最大化利用水蒸发相变潜热。四川西部某新建数据中心使用依米康科技集团股份有限公司产品,配置2台250千瓦间接蒸发冷系统空调,节能率约43%,年节电40万千瓦时。预计未来5年市场占有率可达到30%以上。

间接蒸发冷系统工作原理图.png

间接蒸发冷系统工作原理图

二十二、直流变频节能技术

指直流变频节能空调与服务器机柜形成冷通道后可实现对服务器机柜的定点冷却,具有制冷空间小、冷量流失少、温度控制迅速、温度控制精度高的特点。采用EC电机(永磁同步电机)的压缩机和风机可随机房负荷的变化智能调节,全年能耗节约率达到29.0%。安徽某数据中心改造使用依米康科技集团股份有限公司产品,配置10台直流变频节能列间空调机组,降低了数据中心制冷能耗,制冷AEER可达到5.14,节能率约46%。预计未来5年市场占有率可达到30%。

直流变频节能技术工作原理图.png

直流变频节能技术工作原理图

二十三、数据中心高效模块化集成冷站

采用全变频高效节能技术、机械制冷与自然冷源联合供冷、精准适配节能运行策略、快速部署模块式设计、系统冗余设计、环形管网、电气架构冗余、无扰动强弱电等设计,高气密性检测及自动化焊接等工艺方法,实现系统能效比(EER)>5.5,整机100%厂内预制,工程周期缩短70%,实现全年无间断运行、安全可靠。适用于新建和改造的数据中心。广东某新建数据中心使用珠海格力电器股份有限公司研发的数据中心高效模块化集成冷站,总制冷量7911千瓦,年节电300万千瓦时。预计未来5年市场规模达到3500套以上。

数据中心高效模块化集成冷站.png

数据中心高效模块化集成冷站

二十四、CVT系列永磁同步变频离心式高水温机组

运用高速永磁同步电机直驱双级压缩技术,搭载专为数据中心中高温工况设计的“小压比”离心压缩机,实现机械效率、电机效率、压缩机绝热效率的全面提升。适用于新建和改造的数据中心,也可应用于大型公共建筑温湿度独立控制空调系统。华东某新建数据中心使用珠海格力电器股份有限公司研发的12台该产品,机组满负荷COP较原设计要求提升18%,全年非标准工况部分负荷性能系数(NPLV)超过9.56,年节电900万千瓦时。预计未来5年市场规模达到3500套以上。

压缩机结构示意图.png

压缩机结构示意图

高效冷却及配套技术产品

一、高弹性冷却技术

通过定制空调盘管墙和风扇墙置于服务器机柜后部,根据需求统一制冷、控制,通过创新的气流组织减少风阻和局部热点,使得制冷效率大幅提升。适用于新建和改造的数据中心。华东地区某数据中心采用阿里云计算有限公司的产品作为机房散热方案,能耗较传统冷冻水精密空调降低70%,从而提高IT产出4%。预计未来5年市场占有率可达到20%。

高弹性冷却技术工作原理图.png

高弹性冷却技术工作原理图

二、“冰川”相变冷却系统

以气泵、液泵、蒸发冷凝器和并联末端为硬件基础,加以AI智能控制,灵活满足数据中心的制冷需求。适用于新建和改造的数据中心。年均制冷负载系数(CLF)可达0.035,单机柜最大支持功率可达30千瓦以上。河北保定某云计算数据中心使用北京百度网讯科技有限公司产品,为200个功率密度10千瓦的机柜提供制冷,“冰川”相变冷却系统具体配置为6+1,单系统的制冷量为350千瓦。制冷部分年节电272万千瓦时。预计未来3年市场占有率可达到30%~40%。

“冰川”相变冷却系统工作原理图.png

“冰川”相变冷却系统工作原理图

三、数据中心持续供冷与削峰填谷相耦合的水蓄冷产品

在传统数据中心应急蓄冷罐的基础上,将冷却水补水的1/2存储到蓄冷罐中,降低项目储水投资。在极端的停水条件下,通过蓄冷罐给冷却水系统补水,利用可调节布水器调节布水器高度,保障数据中心的安全性。适用于新建数据中心,产品节能率为20%~30%。某数据中心使用北京环渤高科能源技术有限公司产品,共采用2套单台容量为735立方米自调节型高效水蓄冷设备以及配套系统,年节电38.27万千瓦时。预计未来5年市场占有率增长100%以上。

自调节型高效水储能设备.png

自调节型高效水储能设备

四、喷淋液冷系统

通过将低温冷却液送入服务器精准喷淋芯片等发热单元带走热量,冷却液返回液冷冷却液分配单元(CDU)与冷却水换热处理为低温冷却液后再次进入服务器喷淋,冷却液全程无相变。液冷CDU的冷却水由冷却塔和冷水机组提供。适用于新建和改造的数据中心。数据中心满载运行时,电能使用效率(PUE)值低至1.07,全年平均PUE值处于1.1以下,节电率达50%以上,单体机架功率集成可达50千瓦以上。上海某数据中心使用广东合一新材料研究院有限公司产品,配备12个机架,每机架额定功率32千瓦,总功率384千瓦,采用喷淋液冷技术,年节电196.22万千瓦时。预计未来5年市场占有率可达到10%。

喷淋液冷系统工作原理图.png

喷淋液冷系统工作原理图

五、液/气双通道精准高效制冷技术

根据数据中心服务器的热场特征,高热流密度元器件(例如CPU)采用“接触式”液冷通道致冷;低热流密度元器件(例如主板等)采用“非接触式”气冷通道散热。适用于新建和改造的数据中心。数据中心PUE<1.15,单机架装机容量≥25千瓦。广州某数据中心使用广东申菱环境系统股份有限公司产品,采用45千瓦液/气双通道精准高效制冷技术2套,整体PUE低于1.15,相较常规PUE为2.0的机房年节电62.5万千瓦时。预计未来5年市场占有率可达到10%。

91349fc9042125002dac80a5dbc4f45.jpg

液/气双通道精准高效制冷技术工作原理图

六、节能节水型冷却塔技术

在传统横流式冷却塔的基础上,应用低气水比技术路线,降低冷却塔耗能比,同时减少漂水。适用于新建和改造的数据中心,缺水地区不适宜使用。耗电比在0.030千瓦/(立方米/小时)以下,漂水率小于0.010%。某数据中心使用湖南元亨科技股份有限公司产品,配置4台冷却水量800立方米/小时的元亨节能节水冷却塔,年节电26.1万千瓦时,节水1.1万吨。预计未来5年市场规模将增长至8亿元/年。

节能节水型冷却塔技术工作原理图.png

节能节水型冷却塔技术工作原理图

七、浸入式散热数据中心

由密封的液冷机柜、内部循环模组、换热冷却设备、内外控制设备等组成。IT设备完全浸没在单相导热液中,通过单相导热液直接对发热元件进行热交换,升温的导热液再通过外部驱动系统进行二次热交换,冷却后回流到机柜内部,达到控温效果。某数据中心购买兰洋(宁波)科技有限公司10台浸入式散热数据中心产品,并定制无须散热硬件的服务器,该数据中心IT设备负载约500千瓦,使用后,年节电341.65万千瓦时。预计未来5年市场占有率可达到60%。

浸入式散热数据中心工作原理图.png

浸入式散热数据中心工作原理图

八、浸没式交变脉冲电磁波法循环冷却水处理技术

运用特定频率范围的交变脉冲电磁波,使电磁波能量有效激励水分子产生共振,增强水的内部能量,促使冷却水中形成无附着性的文石及在钢铁表面形成磁铁层,解决结垢和腐蚀问题。同时这种独特的离子电流脉冲波也具有显著的微生物灭杀功能,可以控制细菌和藻类的生长。适用于新建和改造的数据中心。某数据中心使用上海莫秋环境有限公司产品,单塔处理循环冷却水流量575立方米/小时,单套系统年节电8.29万千瓦时,年节水1.5万吨,年节能药剂费8.0万元。预计5年内市场占有率可达到30%。

浸没式交变脉冲电磁波法循环冷却水处理技术工艺系统图.png

浸没式交变脉冲电磁波法循环冷却水处理技术工艺系统图

九、数据中心用DLC浸没式液冷技术

通过将IT设备浸没在冷却液里并直接将热量传递给冷却液,冷却液吸收热量后通过液冷主机与水循环系统换热,水循环系统将热量带到外部换热设备(如冷却塔、空冷器等)并散发到空气中,即完成一次液冷系统的散热循环。适用于新建和改造的数据中心。数据中心使用浸没式液冷技术,平均PUE值可达到1.1。上海某数据中心使用深圳绿色云图科技有限公司的直接浸没式液冷产品,部署了504个机柜,单个机柜功率为11千瓦,年节电728.6万千瓦时。预计未来5年市场占有率可达到8%。

数据中心用DLC浸没式液冷技术工作原理图.png

数据中心用DLC浸没式液冷技术工作原理图

十、空调节能控制柜技术

通过变频调速技术,在满足机房制冷量需求情况下,在低负荷时降低压缩机与风机的转速,使制冷量与机房实际热负荷相匹配,从而提高空调效率,实现节能效果。适用于在用数据中心改造。空调节能率(包括压缩机和风机)可达30%以上。某集团IDC机房使用深圳市共济科技股份有限公司产品,给空调安装节能控制柜后,年节电14.43万千瓦时。预计未来5年市场占有率可达到35%。

空调节能控制柜技术工作原理图.png

空调节能控制柜技术工作原理图

十一、智能变频柜

将智能变频柜增加在精密空调压缩机、室内风机供电前端,使其采集室内的温度信号,根据蒸气压缩式制冷理论循环热力计算结果输出相应控制信号控制压缩机、室内风机工作频率,进而实现降低能耗30%、提高送风温度精度80%、延长压缩机寿命200%的功能。杭州某数据中心使用深圳市英维克科技股份有限公司产品,采用智能变频柜180套。改造后年均节能率30%,年节电1245万千瓦时。此技术主要针对直膨式定频机房空调改造,预计未来5年市场占有率可达到10%。

智能变频柜工作原理图.png

智能变频柜工作原理图

十二、数据中心高效液冷技术及其基础设施产品

通过采用浸没式相变液冷技术,对传统风冷数据中心进行系统化变革,节省原冷却系统约80%的能耗,PUE<1.2,单机柜部署密度>100千瓦,可从冷却性能、功耗、环境效益等综合效能方面加快推进数据中心绿色生态化建设步伐。适用于新建和节能改造的数据中心。北京某中心采用曙光数据基础设施创新技术(北京)股份有限公司产品的88套“1拖2”液冷相变计算单元后,机房配电容量28兆伏安,机房面积仅800平方米,整体系统仅冷却部分年节电0.5亿千瓦时。预计未来5年市场占有率可达到50%。

浸没液冷换热模块工作原理图.png

浸没液冷换热模块工作原理图

十三、机房湿膜加(除)湿技术

加湿方式为机房干热空气通过湿膜时,被加湿、降温和净化,除湿方式为输送机房相对湿润的空气通过换热器冷凝除湿。智能控制器实现对湿度的控制。与传统红外加湿和电极加湿技术相比,湿膜加(除)湿机节能率可达90%以上。适用于新建和改造的数据中心。浙江某数据中心使用四川斯普信信息技术有限公司产品后,年节电158.9万千瓦时。预计未来5年实现推广量10000台。

机房湿膜加(除)湿技术工作原理图.png

机房湿膜加(除)湿技术工作原理图

十四、数据中心循环冷却水系统节能技术

应用智慧算法控制冷却水水质和系统运行参数,通过降低冷却水供水水温和制冷机趋近温度的方式,降低制冷机的制冷单位能耗。适用于新建和改造的数据中心,降低整站能耗5%~10%左右。某数据中心,使用天津鲲飞环保科技有限公司产品,年节电132.17万千瓦时,年节水830吨。预计未来3年市场占有率可达到20%。

数据中心循环冷却水节能技术工作原理图.png

数据中心循环冷却水节能技术工作原理图

十五、智能喷雾系统

利用离心雾化器把水雾化后挥洒在冷凝器进风侧平行空间,有效降低了空调冷凝器进风口的环境温度,提高了冷凝器的热交换效率,达到降低压缩机排气压力和减少压缩机功率消耗的目的。适用于数据中心空调的节能技术改造,缺水地区不适宜使用。某数据机房使用天来节能科技(上海)有限公司产品,经对比测试,在空调室外机冷凝器进风侧安装智能喷雾系统的综合节能率约19%,年节电13.83万千瓦时。预计未来5年内,国内市场规模(进行雾化节能改造的空调)将达到10000台,尤其在老旧风冷空调的数据中心改造中有较大的推广潜力。

雾化器.png

雾化器

十六、数据中心冷却用高效通风机

采用优化叶片,整体优化流场同时电机速度可控效率高,在宽载荷、宽转速范围内保持高效低耗,适用于新建和改造的数据中心,适用信息设备负载率范围为25%~100%。北京某数据中心使用威海克莱特菲尔风机股份有限公司产品进行改造,目前已运行5年,安全可靠无故障,单台风机年节电约7200千瓦时。预计未来5年市场占有率可达到30%以上。

数据中心冷却用高效通风机工作原理图.png

数据中心冷却用高效通风机工作原理图

十七、高效环保型氟化冷却液

包含全浸没相变和单相冷却介质,用于浸没式(接触式)液冷。具有价格低、材料相容性好、温室效应潜能值低的特点。适用于新建和改造的数据中心。产品绝缘不导电、无闪点,臭氧消耗潜能值(ODP)为0,全球变暖潜能值(GWP)<150。浙江某数据机房使用浙江诺亚氟化工有限公司生产的氟化液产品,实现PUE控制在1.1以下。对比同规模常规风冷数据中心可节约65%占地面积,年节电23.5万千瓦时。预计未来5年市场占有率可达到15%。

高效环保型氟化冷却液工作原理图.png

高效环保型氟化冷却液工作原理图

高效供配电技术产品

一、10千伏交流输入的直流不间断电源系统

通过配电链路和整流模块拓扑两个维度对原有系统进行优化,减少了系统66%的配电环节,从而实现了最高运行效率,相比传统方式提升超过3%。适用于新建和改造的数据中心。华东某数据中心采用阿里云计算有限公司18台1.2兆瓦 10千伏交流输入的直流不间断电源系统,使用DR架构配置,供电部分年节电850万千瓦时。预计未来5年市场占有率可达到20%。

10千伏交流输入的直流不间断电源系统产品外观图.png

10千伏交流输入的直流不间断电源系统产品外观图

二、分布式电源技术

将集中式供配电系统“化整为零”,分散部署在数据中心的机柜中。采用内置锂电池模块替代铅酸电池,将传统供配电系统成熟稳定的控制技术与新型高性能锂电池储能技术相结合,降低了数据中心供电系统的能耗、体积和重量,提高了供电系统的可靠性,机房的空间利用率提高30%~50%。适用于新建和改造的数据中心。某数据中心使用安徽明德源能科技有限责任公司的分布式电源系统,相较于集中式供电系统,节省电能损耗约5.6%;总体收益提高30%;同时可实现分批投入;支持灵活调整供电制式,适应业务发展的需求。预计未来5年市场占有率将超过5%。

分布式电源技术工作原理图.png

分布式电源技术工作原理图

三、分布式锂电池备电系统

采用技术成熟的高倍率锂电池,通过串并联组成电池包,与控制充、放电的DC/DC等组成备电单元,多个BBU通过并联组成分布式电池备电系统。适用于新建和改造的数据中心。某数据中心使用北京百度网讯科技有限公司的产品215套,供电效率可达99.5%,节省机房面积25%以上,使用寿命提高2~3倍,年节电40万千瓦时。预计应用规模将不断扩大。

分布式锂电池备电系统工作原理图.png

分布式锂电池备电系统工作原理图

四、飞轮储能装置

由飞轮储能电机、电力电子装置、监控系统、辅助系统等组成。通过飞轮储能装置、UPS机柜、备用电源对原有UPS蓄电池不间断电源系统进行改造,提高了UPS不间断电源系统的可靠性、安全性。适用于新建和改造的数据中心。飞轮储能装置最高效率>98%;飞轮储能电力系统效率>97.5%。某数据中心使用二重德阳储能科技有限公司产品,年节电超过5000千瓦时。预计未来3年市场占有率可达到10%。

飞轮储能装置工作原理图.png

飞轮储能装置工作原理图

五、敞开式立体卷铁芯干式变压器

采用立体卷铁芯结构,三相磁路完全对称等长,确保三相供电平衡。采用芳纶绝缘纸与艾伦塔斯单组份漆组成的混合绝缘技术,最高绝缘等级C级,最高允许温度为220℃,750℃以下不会释放有害气体。能耗水平可达到或优于GB 20052—2020《电力变压器能效限定值及能效等级》中1级能效标准。某数据中心使用海鸿电气有限公司产品,配置两台敞开式立体卷铁芯干式变压器,供电系统年节电约40000千瓦时。预计未来3年可保持12.4%的年均复合增长率。

敞开式立体卷铁芯干式变压器铁芯对比图.png

敞开式立体卷铁芯干式变压器铁芯对比图

六、华为新一代中大型模块化不间断电源系统

采用全新热插拔功率模块,其50千伏安功率模块已在行业应用超过8年,最新推出的100千伏安功率模块更加有效节省占地面积和安装工时,系统在线模式效率高达97%,创新智能在线模式效率高达99%。休眠模式低载高效,iPower智能手段提升系统可靠性,简化运维,智能在线模式实现高效率、优指标的同时,保障无中断切换。某数据中心使用华为技术有限公司高效模块化UPS产品,总容量20兆伏安,包括UPS两种机型,相比于传统UPS,效率提升1%,年节电1004万千瓦时。预计未来5年市场占有率可达到65%。

华为新一代中大型模块化不间断电源系统工作原理图.png

华为新一代中大型模块化不间断电源系统工作原理图

七、智能锂电SmartLi

华为公司推出配套UPS使用的储能产品,具有安全可靠、使用寿命长、占地面积小、运维简单等优点。某数据中心使用华为技术有限公司智能锂电产品,总配置28套UPS5000系列模块化不间断电源(500千伏安)+40套SmartLi智能锂电,年节电6400千瓦时。预计未来5年市场占有率可达到55%。

智能锂电SmartLi工作原理图.png

智能锂电SmartLi工作原理图

八、智能电力模块

采用一体化集成方案,具备一体化集成,安全可靠,节省机房占地面积和提高链路效率,安装省时、省力、省心,架构兼容,部署快速灵活和一体化集中监控等特点,适用于新建和改造的数据中心。电力模块内置高效模块化UPS,采用铜排预制优化供电链路,将原有的数据中心供配电系统链路供电效率从94.5%提升到95.5%。某数据中心使用华为技术有限公司产品,共1000机柜,单柜功率8千瓦,负载率80%,供配电系统全部采用电力模块方案,年节电83万千瓦时。预计未来5年市场占有率可达到40%。

电力模块解决方案.png

电力模块解决方案

九、模块化不间断电源(UPS)

由整机机柜、功率模块、旁路模块、系统控制模块、监控模块及配电模块组成。各功能单元采用模块化设计,系统支持IECO在线补偿节能模式,可无缝切换,同时系统内置集中式静态开关旁路,抗短路能力强,可靠性更高。广州某数据中心项目使用科华数据10套400千伏安和10套500千伏安数据中心用UPS电源系统,综合年经济效益合计为141.91万元。预计未来5 年市场占有率可达到约30%。

模块化不间断电源(UPS).png

模块化不间断电源(UPS)

十、数据中心用240伏/336伏直流供电系统

针对数据中心和数据机房对供电电源的可靠性、经济性的要求而开发的大功率、模块化、节能型直流不间断电源产品。功率部分采用标准模块化设计,可灵活配置系统容量,根据系统容量不同分为组合式和分体式,其中组合式系统最大容量为210千瓦,分体式系统最大容量为720千瓦。广州某数据中心采用科华数据4套1200安/360千瓦数据中心用直流电源系统,采用17+7的多冗余配置,综合年经济效益合计为59.36万元。预计未来5年市场占有率可达到20%。

节能型智慧数据中心基础设施解决方案.png

节能型智慧数据中心基础设施解决方案

十一、分布式锂电不间断电源系统

采用模块化、小型化设计,可以分散部署在数据中心的每一个IT机柜中对负载进行供电,带载效率高。锂电池内置设计,充分利用锂电池充放电效率高、节能效果好的特性,保证备源时间更长、节电效果更好。取代传统UPS的应用模式和铅酸电池,绿色无污染。按需投入、降低初期投资成本。适用于新建和改造的数据中心。市电模式效率高于94%,电池模式效率高于91%。某数据中心改造项目使用联方云天科技(北京)有限公司产品232套,供电及控温保障部分每台年节电7200千瓦时。预计未来5年市场占有率可达到30%。

分布式锂电不间断电源系统技术原理图.png

分布式锂电不间断电源系统技术原理图

十二、模块化不间断电源

将UPS系统功能部分进行模块化设计,分为机柜、旁路模块及功率模块,整机具有智能控制、绿色休眠备份功能,提高系统运行效率和节能效果。某机场IT配电机房使用深圳市英威腾电源有限公司产品,采用2台RM150/25C模块化UPS产品,供电部分年节电15万千瓦时。预计未来每年出货量21000台。

模块化不间断电源工作原理图.png

模块化不间断电源工作原理图

十三、磁悬浮飞轮储能装置

一种机电能量转换和储存装置,以飞轮本体高速旋转的形式存储动能,并通过与飞轮本体同轴的电动机/发电机完成动能与电能之间的转换,此装置采用五自由度主动磁悬浮的轴承体系,飞轮在密闭的真空容器中处于无接触完全磁悬浮状态,以每分钟不低于35000转的转速旋转。在设备正常使用频次内,寿命可达20年以上。适用于新建和改造的数据中心。某数据中心使用沈阳微控新能源技术有限公司产品24台,供电部分年节电90万千瓦时。预计未来5年市场占有率可达到40%。

磁悬浮飞轮储能装置工作原理图.png

磁悬浮飞轮储能装置工作原理图

十四、SCB-NX1智能型环氧浇注式干式变压器

目前干式变压器损耗值较低的解决方案,能有效降低数据中心的电能损耗,是一种采用绿色运维管理技术、提升能源和资源利用效率的技术产品。适用于中小型、大型、超大型新建和改造的数据中心。在应用地域地理位置上,SCB-NX1能效系列干式变压器可适应严寒、寒冷、温和等各种气候条件地区。某数据中心使用施耐德电气(中国)有限公司提供的产品,年节电约48.4万千瓦时。预计未来3年市场占有率可达到4%。

SCB-NX1智能型环氧浇注式干式变压器产品外形图.png

SCB-NX1智能型环氧浇注式干式变压器产品外形图

十五、模块化设计不间断电源

将UPS电源、UPS配电、精密配电柜集成在一个机柜内,采用了专利的E变换运行模式和混合三电平逆变器技术。适用于新建和改造的数据中心。E变换运行模式下效率可达99%,双变换运行模式下效率也可达97%。某企业数据中心使用施耐德电气模块化设计不间断电源产品,采用一台100千伏安一体化不间断电源系统,供电部分年节电4.08万千瓦时。预计未来5年市场占有率可达到15%。

E 变换运行模式工作原理图.png

E 变换运行模式工作原理图

十六、APT预制化电力模组

将中低压链路中的中压柜、变压器、低压柜、功率补偿装置、UPS等装置,内部全部通过铜排连接,在工厂完成预制的一体化电源产品。APT系统简化了电气链路,提高了系统的PUE值。铜排连接代替电缆减少了现场施工时间。适用于新建和改造的数据中心。APT系统简化了电气分级布局,铜排的损耗也优于电缆,实际交付时间可缩短为原先的1/6,节约占地面积高达30%。浙江某数据中心采用维谛技术有限公司提供的产品,供电pPUE降低0.02,电力系统节电30%。预计未来3年市场占有率可达到20%以上。

电气系统图.png

电力系统图

十七、具有AI特征的Trinergy智能调控“三工况”运行模式的UPS产品

能够基于历史和当前市电、负载的情况,自适应选择VFI/VI/VFD(IEC 62040标准规定)三种模式中最优的运行模式。适用于新建和改造的数据中心。德国某数据中心采用维谛技术智能调控“三工况”模式的1600千伏安 UPS,在确保高供电质量和99.999998%可用性的前提下,提供高达98.5%的综合运行效率及高达99.5%的最大效率,年节电约80万千瓦时。预计未来3年市场占有率可达到40%。

具有AI特征的Trinergy智能调控“三工况”运行模式的UPS产品工作原理图.png

具有AI特征的Trinergy智能调控“三工况”运行模式的UPS产品工作原理图

十八、模块化不间断电源(UPS)

各个功能单元采用模块化设计,系统支持在线补偿节能运行模式(IECO),其整机效率高达99%以上,市电供电和电池供电间可0毫秒无缝切换,当先控UPS系统工作在IECO模式时,系统可自动进行功率因数补偿,使UPS的输入功率因数始终大于0.99。系统兼具储能功能,配合锂电系统实现削峰填谷,创造价值。系统内置集中式静态开关旁路,抗短路能力强,可靠性更高。某超算中心使用先控捷联电气股份有限公司的模块化不间断电源产品,相比传统UPS可节电约7%,负载800千瓦,年节电50万千瓦时。预计未来5年市场占有率可达约30%。

模块化不间断电源(UPS)工作原理图.png

模块化不间断电源(UPS)工作原理图

高效系统集成及IT技术产品

一、整机柜服务器

采用48伏供电方案和双输入电源模块架构、虹吸散热技术、标准化设计并独立机柜监控单元(RMC)。IT部分采用池化设计,计算节点和存储节点分离设计,易于扩展。某数据中心使用北京百度网讯科技有限公司整机柜服务器产品,共采用20多个机柜,300多个服务器。单节点实现功耗节省18瓦以上,单节点供电部分年节电157千瓦时。预计应用10万节点以上。

640.jpg

二、X-MAN服务器

基于异构加速处理及计算的定制化服务器设计,结合整机柜的模块化设计,深度挖掘及调优GPU/FPGA/AI加速芯片的异构加速性能,将计算池化,提升并行计算性能,做到资源共享,灵活适配。传统的GPU服务器单机功耗区间为5500~6000瓦,耗电量大,运营成本高。某数据中心部署北京百度网讯科技有限公司提供的3600多台X-MAN服务器,年节能933万千瓦时。百度已经规模化上线承载真实业务,预计潜在普及率高达30%以上。

蓝海大脑封面图.jpg

三、硬盘冷存储库技术

以硬盘作为数据的存储载体,集数据迁移、数据安全、长期存储、查询应用、软硬件系统为一体的系统产品,为用户提供多功能、低能耗、易使用的归档数据长期保存的方法,通过控制节点供电的方式按需智能供电,降低存储的能耗,与同等容量常规存储相比节能87%以上。适用于新建和改造的数据中心以及各行业客户本地化节能存储。某大数据中心使用北京盛赞数据备份系统有限公司的产品,年节电2.7万千瓦时,节能约90%。预计未来5年市场占有率可达到40%~50%。

工作原理图.png

硬盘冷存储库技术工作原理图

四、新一代节能高效蓝光及光磁电一体化智能存储技术产品

针对海量温冷数据,利用分布式存储架构,融合NVMe、SSD、HDD、蓝光等存储介质的优势,为用户提供异质、分级数据存储服务。适用于新建和改造的数据中心。同等存储容量能耗仅为磁盘存储的1/20。某数据中心使用北京易华录信息技术股份有限公司产品,建设光存储能力500PB、磁存储能力50PB、云计算节点服务能力200台,可提高工作效率45倍,实现节能率约94.72%,年节电100万千瓦时。预计未来5年市场占有率可达到60%。

新一代节能高效蓝光及光磁电一体化智能存储技术产品工作原理图.png

新一代节能高效蓝光及光磁电一体化智能存储技术产品工作原理图

五、全介质多场景大数据存算一体机

采用基于模块化转笼式光盘库设计技术、单次多光盘快速抓取装置设计技术等,实现数据存储的安全和节能。适用于新建和改造的数据中心。某信息中心使用北京中科开迪软件有限公司产品,自2018年9月项目交付至今,系统保持无故障运行,设计蓝光存储规模1PB,用于归档等冷数据存储。采用蓝光存储相比磁盘存储,年节电2万千瓦时,节电80%以上。预计未来5年市场占有率可达到70%。

深度学习液冷服务器.jpg

存算数据一体机

六、紫晶蓝光存储

依托于数据“冷”、“热”分层的技术理念,大量“冷”数据存放于蓝光介质中。蓝光存储介质95%以上的时间都处于不耗电的状态,每PB数据一年耗电仅为4000千瓦时左右,而保存于磁存储每PB数据一年耗电约为36000千瓦时,单位容量节能约90%。相对于磁电介质,几乎不发热,不会造成周边环境温度过高,绿色环保。适用于新建和改造的数据中心。某市数据中心使用广东紫晶信息存储技术股份有限公司的蓝光存储,年节电150万千瓦时。预计未来5年市场占有率可达到40%。

存储技术原理图.png

技术原理图

七、预制式微模块数据中心技术

包含L0+L1融合预制方案和L1预制方案。L0+L1融合预制方案将模块化数据中心与装配式建筑相结合,工程产品化,可6个月完成1000柜业务上线(不含设计时间)。L1智能微模块数据中心方案集IT机柜、制冷系统、供配电系统、监控系统、照明、布线、安防系统等于一体,集成人脸识别等一系列智能特性。某北方数据中心采用华为技术有限公司提供的1100个L0+L1融合预制模块,实际运行年均PUE达到1.15,年节电6339万千瓦时。预计未来5年市场占有率可达到35%。

八、模块化数据中心(微模块)

基于能效管理技术、冷电联动节能技术、智能化运维管理技术等,降低制冷系统能耗及供配电系统损耗,实现实时智能自动化调优,减少运维工程师干预,降低数据中心运行维护成本,最高可节省超过30%的运营费用。广州某数据中心项目使用科华数据股份有限公司的数据微模块产品,启用120套微模块,微模块电能使用效率(PUE)≤1.23,年可节省电费8916.8万元。预计未来5年市场占有率可达到15%以上。

微信图片_20221103102727.jpg

九、微型液冷边缘计算数据中心

由微型液冷机柜、二次冷却设备、服务器、网络设备、硬件资源管理平台等组成。将不需要风扇的IT设备完全浸没在注满冷却液的液冷机柜中,使热量直接传递给冷却液,再通过小功率变频循环泵驱动,将冷却液循环到板式换热器与冷媒系统换热,冷媒系统将换取的热量带到二次冷却设备,通过风机将热量散发到空气中去。适用于新建和改造的数据中心,PUE值可低至1.1。某融媒公司使用深圳绿色云图科技有限公司的液冷产品,IT设备规模100千瓦,年节电8.76万千瓦时。预计未来5年市场占有率可达到8%。

存算大数据一体机.png

十、池式模块化数据中心

以整体机房建设为理念,由机柜系统、供配电系统、热管理系统、监控软硬件系统以及气流管理系统组成,机柜系统为强抗震及高静动载能力IT设备柜,供配电系统由UPS、电池及精密配电柜组成,热能管理系统由节能制冷空调系统组成,监控软件系统为成套设备综合软硬件系统,气流管理对气流进行有效遏制,各子系统实现工厂预制,现场快速组装模式。上海某数据中心使用深圳市艾特网能技术有限公司的3个池式模块单元,项目整体年能耗约为250万千瓦时,比其他技术方式年节电200万千瓦时。预计未来3年市场占有率可达到40%。

十一、机柜式模块化数据中心

包含承载及通道封闭系统、不间断电源系统、配电系统、环境管理系统、安全管理系统、监控管理系统、照明及可视化系统。采用标准化、模块化、预制化方式。具有提高数据中心整体运营效率,快速部署、弹性扩展和绿色节能的特点。某省金融网点使用深圳市艾特网能技术有限公司方案配置3~5个全封闭机柜,单台制冷量3.5千瓦机架式变容量空调,有效降低制冷能耗。其中模块内空调全年运行耗电量约占传统机房空调的61%,年节电4802千瓦时。预计未来5年市场占有率可达到19%。

机柜式模块数据中心.png

工艺图

十二、预制式微模块集成技术及产品

在模块内集成机架、供配电、制冷、环境监控等数据中心组成部件,具有快速灵活、按需部署、建设简单等特点。冷热通道隔离技术可降低能耗。某数据中心机房改造使用深圳市英威腾电源有限公司4套腾智微模块产品,年节电232万千瓦时。预计未来每年出货量1600台。

预制式微模块集成技术及产品工作原理图.png

预制式微模块集成技术及产品工作原理图

十三、双层双联微模块

具有独立运行功能的微模块,包含上下两层,每层四列机架。一体化集成机柜、电源、配电、空调末端、布线、消防、监控管理等系统,冷热通道封闭,装配式设计,8级抗震,IP44防护等级,具有“即装即用”的快速响应优势,可实现快速部署。适用于新建数据中心。全国范围内PUE≤1.3,部分地域低至1.2以下。内蒙古某数据中心使用中国移动通信集团设计院有限公司产品,三个月完成12台产品部署,PUE值约1.21,较新建传统数据中心降低约0.08,年节电353万千瓦时。预计未来5年市场占有率可达到10%。

智能控制及绿色运维管理技术产品

一、AI能源管理系统

通过智能软件和物联网硬件的结合,准确判断用能需求,建立温度场、湿度场等计算模型,精确供能,提高能源利用效率。适用于新建和改造的数据中心。平均节能率20%以上。某空调机房使用北京合创三众能源科技股份有限公司研发的AI能源管理系统,总建筑面积21万平方米,供冷机房水冷空调系统由4台开利离心式冷水机组,配有冷却水泵6台,冷却塔7台14个风扇,空调侧冷冻水泵12台。平均节电率可达28.9%。预计未来3年市场占有率可达到30%。

深度学习架构平台.png

二、人工智能物联网(AIoT)数据中心垂直制冷能效控制系统

一套实现数据中心制冷系统能耗管理与运行控制于一体的制冷设施整体管控平台、节能控制平台、运行数据挖掘分析平台。本系统利用物联网(IoT)技术、AI技术耦合数据中心IT负载特性、地域气候特性等固有属性,针对数据中心制冷系统建立全局能耗运行模型,在全工况下实现数据中心制冷系统的冷源、输配、末端空调的全局节能智控,整体制冷系统年节电率15%~30%。北京嘉木科瑞科技有限公司将AIoT数据中心垂直制冷能效控制技术应用于北京某数据中心空调节能改造,年节电628万千瓦时。预计未来5年市场占有率可达到30%。

AIoT 数据中心垂直制冷能效控制系统系统架构图.png

系统架构图

三、“5H”数据中心冷源系统

由满足2小时以上应急的蓄冷系统、群控系统(冷机、冷塔、水泵、板换等)、空调末端以及基于AI技术的建筑自控(BA)系统组成的节能控制系统,可提高整个冷源系统的运行效率。适用于新建和改造的数据中心。性能系数(COP)可提升25%~30%,能效比(EER)可提升10%~15%,WUE可降低8%左右。某数据中心使用北京英沣特能源技术有限公司产品,空调系统节能率达到13%以上,系统运行效率提升20%以上,年节电255.5万千瓦时。预计未来5年市场占有率可达到30%以上。

“5H”数据中心工作原理图.png

工作原理图

四、数据中心电力管控系统节能技术

数据中心电力管控系统节能技术是数据中心基础设施管理系统、数据库和流程管理的结合,按照数据中心国际通用安全原则,可以确保安全,提高效能,节能降耗。系统采用美国信息技术工业协会(ITIC)曲线标准,具有“1+3”功能——节能降耗+运行安全、控制安全、通信安全。系统可有效抑制瞬变浪涌,降低电流谐波畸变率和无功损耗,提高功率因数。某数据中心使用北京中大科慧科技发展有限公司产品年节电20.34万千瓦时,节能率33%。预计未来5年市场占有率可达到70%。

数据中心电力管控系统节能技术工作原理图.png

数据中心电力管控系统节能技术工作原理图

五、数据中心空调靶向调控节能系统

基于气流组织优化与电能使用效率(PUE)在线跟踪分析,通过动态监测机架负载和温度,融合精密空调冷量靶向调控、“风口-精密空调-冷源”三级逆向按需调控等技术,实现空调系统高效运行。适用于新建和改造的数据中心。实现数据中心空调节电率25%~30%;数据中心PUE值可降低5%以上。某数据中心使用广州远正智能科技股份有限公司产品, PUE值由1.63降至1.48,年节电218万千瓦时。预计未来5年市场占有率可达到10%。

数据中心空调靶向调控节能系统系统架构示意图.png

数据中心空调靶向调控节能系统系统架构示意图

六、制冷系统智能控制系统

替代传统的人工调节,通过海量数据分析,训练出数据中心PUE模型,模型精度高达99.5%,推理出最佳参数组合并应用,降低数据中心能耗。适用于新建和改造的数据中心。通过不断学习,持续自我优化,实时更新制冷策略,系统级调优,可以使数据中心PUE降低8%~15%。廊坊某数据中心使用华为技术有限公司产品,共4000机柜,单柜功率8千瓦,负载率70%,全部部署了制冷系统智能控制系统,PUE由1.42降至1.25,年节电3336万千瓦时。预计未来5年市场占有率可达到35%。

制冷系统智能控制系统工作原理图.png

制冷系统智能控制系统工作原理图

七、微模块综合监控系统

通过监控微模块温度场、机柜负载情况,利用前馈控制、温度自适应、热点追踪等策略,自动调节空调制冷,以实现按需供冷,有效降低机房能耗及PUE。微模块综合监控系统PUE可降低0.08~0.12。适用于数据中心的新建和改造。广州某数据中心采用科华数据120套微模块,包括2000套机柜, IT总负载为13000 千瓦,综合年经济效益合计为8916.8万元。预计未来5年市场占有率可达到20%。

微模块综合监控系统图.png

微模块综合监控系统图

八、智能温控系统

通过企业搭建的大数据服务中心,提供运维服务平台,通过云端数据化储存和云端数据化分析,实现远端智能化管理、本地智能化管理、远端异常诊断和用户终端智能化的互联互通,为客户提供数字化服务。适用于新建和改造的数据中心。某学校使用辽宁省鑫源温控技术有限公司产品,面积10000平方米,在舒适度完全没有降低的情况下,采暖系统的运行费用降低了12.8万元。预计未来市场占有率可达到50%以上。

智能温控系统工作原理图.png

智能温控系统工作原理图

九、数据中心冷却系统智能控制技术

基于大数据、AI、物联网和自动控制技术,实现空调系统运行状态优化和节能,以及机房能效诊断和节能潜力评估。适用于新建和改造的数据中心。针对空调末端设备实施,综合节能率不低于25%;针对冷站实施,综合节能率不低于15%。某数据中心机房使用南京群顶科技有限公司产品,对所有风冷精密空调进行自动策略调节,PUE由1.6降至1.43,年节电32.52万千瓦时。预计未来3年市场规模在1万台以上。

数据中心冷却系统智能控制技术工作原理图.png

数据中心冷却系统智能控制技术工作原理图

十、机房环境参数测量分析及AI节能优化技术

采用机器人搭载传感器短时间内自动完成机房空间内的温湿度和空气流量等环境参数的测量,通过气流模型形成温度云图,进行热点分析和室内气流优化,另结合动环监控系统以及BA系统的历史数据,通过机器学习模型训练,优化数据中心节能运维管理。某数据中心空调平均能耗为143.2千瓦,使用上海允登信息科技有限公司的技术进行测量分析及改造后,年节电39.5万千瓦时。预计未来市场占有率可达到50%以上。

机器人自动化采集示意图.png

十一、数据中心智慧节能云平台

通过采集数据中心内设备的运行信息和环境参数,优化设备运行工况,降低无效能耗输出,实现数据中心的节能和智慧云管理。适用于新建和改造的数据中心。综合节电率(含IT设备能耗)可达10%以上。某数据中心使用深圳市共济科技股份有限公司产品,安装节能及采集设备并搭建智慧节能云平台,年节电560.15万千瓦时。预计未来5年市场占有率可达到40%。

数据中心智慧节能云平台工作原理图.png

数据中心智慧节能云平台工作原理图

十二、数据中心智能运维管理平台

通过对数据中心基础设施动力环境及IT基础架构全面监控及分析,制定出最优策略,对各系统进行实时控制,实现数据中心能效最优。河北某数据中心有机柜1000架,设计容量15000千伏安,集中式冷水机组制冷系统,使用深圳市杭金鲲鹏数据有限公司的产品改造后,PUE由1.38降至1.29。预计未来5年市场占有率可达到30%。

数据中心智能运维管理平台工作原理图.png

数据中心智能运维管理平台工作原理图

十三、数据中心电能效率优化及智能运维管理技术

通过融合储能系统网络化管理、暖通系统优化策略算法与自动调控、基于大数据挖掘的节能诊断及优化等多项技术,实现数据中心电能效率整体优化(含电力容量及能流监测、暖通系统自动控制等)。适用于新建和改造的数据中心。系统年可利用率≥99.99%,使用寿命>10年。广东某数据中心使用深圳市中电电力技术股份有限公司产品,设备IP化率达到90%,单套系统测点规模达到30万,数据采集及处理速度提升约30%,异常事件处理效率提升约30%;机房楼年节电50.1万千瓦时。预计未来5年市场规模可达到1000套以上。

数据中心电能效率优化及智能运维管理技术工作原理图.png

数据中心电能效率优化及智能运维管理技术工作原理图

十四、动态在线技术

动态在线技术的UPS产品——视觉识别(VI)动态在线模式是为满足客户高能效比、高可靠性的需求,采用经济型(ECO)旁路直供+逆变器实时在线补偿市电干扰和负载谐波的方式,在市电异常时0毫秒切换到逆变器供电的一种高效运行模式。适用于新建和改造的数据中心。每台600千伏安设备,相较于传统双变换模式的工频UPS,年节电40万千瓦时。预计未来3年市场占有率可达到50%。

动态在线技术工作原理图.png

动态在线技术工作原理图

十五、基于AI的机房智慧节能系统

通过云边端三级协同支持智能化的能耗分析和预测,核心的AI智能引擎加载了近20余种核心关键AI模型算法,整个产品包含20多项功能创新,基于机房温度、气流分布状态及各类运行数据生成定制化节能策略,减少机房制冷冗余,提高制冷效率。适用于改造的数据中心,制冷节能率可达20%~50%。某数据中心使用中国电信产品,年节电179万千瓦时。预计未来5年市场占有率可达到80%。

基于 AI 的机房智慧节能技术原理图.png

基于 AI 的机房智慧节能技术原理图

十六、DCIM数据中心智能管理系统

通过对数据中心设施的检测、管理和优化,将运营管理和运维管理有机融合,提供数据中心全生命周期管理,全方位保证数据中心的可靠性和可用性,结合AI及机器人技术,实现精细化能效管理和智能化运维管理,保障数据中心绿色、安全、高效运行。数据中心管理系统结合AI技术,节能8%;结合容量管理、资产管理、能效管理提升资源利用率20%;结合工单管理、巡检管理等功能,运维效率提升50%,适用于新建和改造的数据中心。某数据中心使用中兴通讯数据中心智能管理系统产品,实现在华南地区PUE低于1.25,年节电1000多万千瓦时。预计未来5年市场占有率可达到30%。

DCIM数据中心智能管理系统功能架构图.png

DCIM数据中心智能管理系统功能架构图

十七、机房智慧节能管理系统

面向基础设施数字化监管及节能领域,自主研发动环监控平台、能源管理平台及硬件终端(FSU、DTS),提供软硬件和各类底层传感器部署调测及节能优化服务,实现对各类基础设施场景的远程监管、火灾防控及节能管控。提供能源审计、项目设计、设备和材料采购、工程施工、人员培训、节能量检测、改造系统的运行维护与管理等服务。北京某数据中心使用中移系统集成有限公司产品,包括能源管理平台及节能改造优化服务,平均年节电1000万千瓦时。预计未来5年市场占有率可达到15%。

可再生能源回收利用技术

一、废铅蓄电池全组分清洁高效利用处理技术

通过开发电池自动破碎、精细分离工艺及设备,硫酸铅膏“氧化熔炼—还原吹炼”双侧吹富氧熔池熔炼技术及铅栅低温熔铸处理工艺,实现一次粗铅产出率70%以上,单位产品水耗0.3立方米/吨;塑料中铅含量小于0.01%,铜极柱回收率高于99.5%,锡、锑等有价金属回收率高于98%。适用于新建和改造的数据中心。某示范工程使用安徽华铂再生资源科技有限公司提供的该技术,废电池破碎、铅膏熔炼、铅屑冶炼综合能耗分别降至2.25千克标煤/吨、152.88千克标煤/吨、10.66千克标煤/吨,单位再生铅产品新水消耗量0.28立方米/吨铅,年节能10572.2吨标煤,年节水6.65万吨。预计未来5年市场占有率可达到50%。

废铅蓄电池全组分清洁高效利用处理技术工艺技术路线图.png

二、废旧电池无害化处理技术

将回收的动力电池经拆解、检测及重组处理,最终得到一致性较好的梯次利用产品。对于无法梯次利用的废旧电池,采用焙烧、物理分选、湿法冶金联合工艺,回收镍、钴和锂等元素。适用于在用数据中心改造。钴回收率≥98.18%;镍回收率≥98.46%。某企业使用赣州市豪鹏科技有限公司技术处理约50吨废旧锂电池,循环再生镍金属量2.3吨、钴金属量0.94吨、锰金属量1.4吨、锂金属量0.47吨。预计未来5年市场占有率可达到25%。

废旧电池无害化处理技术工艺流程图.png

三、分布式绿色发电技术

分布式绿色发电技术的核心是融合人工智能和大数据分析技术,分析当地负载与数据中心的用电需求。华为数字能源推出大型数据中心以及分布式绿色发电技术的融合解决方案,为数据中心提供安全、绿色能源解决方案,实现数据中心用能“绿化”。某项目使用华为技术有限公司分布式绿色发电方案,设计安装6兆瓦光伏系统,每年可提供580万千瓦时清洁电力,预计未来3年市场占有率可达到30%。

分布式绿色发电解决方案.png